Van Landingham Estate in Plaza Midwood will be restored — expect additional retail and office space
Add Axios as your preferred source to
see more of our stories on Google.

Van Landingham Estate
Plans for the Van Landingham Estate in Plaza Midwood have been confirmed: the home will be completely renovated, and two buildings will be brought into the mix for office and retail space.
The plan is for the house to be used as an event venue, including for weddings. This is really a fantastic example of not only preserving a beautiful historic structure, but enhancing it with new buildings and breathing new life into the property.
Background: Brooks Shelley and his partner closed the The Van Landingham Estate Inn & Conference Center for business in 2018. The original 5-acre property was split into two parcels when Shelley and his partner sold the home and surrounding 2.8 acres to VLE Partners LLC — a partnership between Ascent Real Estate Capital and Stono River Partners — in March 2019. Cluck Design Collaborative, the team behind The Suffolk Punch, Queen Park Social, SouthBound and a ton of other local projects, has led the design of the new office building and refurbished house on this 2.8-acre property. Shelley and his partner own the remaining 2.2 acres of land which has now been rezoned for townhomes to be built. The townhome project is completely separate from estate plans.
Topiary: The first of the new buildings, an 18,000-square-foot two-story commercial space, could be used for retail or office. The design will be a modern building that will also be covered in a “living” wall that over time will completely cover the building in lush and living green facade. This will help the building seamlessly blend into its surroundings.
The first floor will have almost 9,000 square feet of space, and the second floor will have 9,470 square feet of space. There will also be parking surrounding the building with beautiful landscaping.
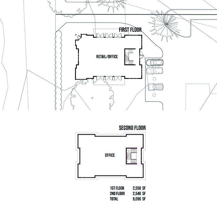
Belvedere: The second building will draw its design inspiration from the existing carriage house and contain 5,000 square feet of space which will also be used for office or retail. This two-story building will take the place of the garage built in the 40s or 50s.
Next steps: Jon Dixon, managing principal at Ascent, says “we are really proud of this vision. Many of our team members and partners live in Plaza Midwood, and we are experienced owners in Charlotte’s great infill neighborhoods.
The plan is to finish out all the required rezoning and begin renovations in Q4 of this year.
[Related Agenda story: Plans for the historic Van Landingham Estate in Plaza Midwood include townhomes, restoration of main house and new building]
/2024/01/05/1704491584981.jpg)
/2024/01/05/1704491585337.jpg)
/2024/01/05/1704491585693.jpg)
Renderings courtesy of Cluck Design Collaborative and Ascent Ascent Real Estate Capital
/2024/01/05/1704491586019.jpg)
/2024/01/05/1704491586325.jpg)