The new tower at 620 South Tryon will bring a splash of 90s style to the skyline
Add Axios as your preferred source to
see more of our stories on Google.

620-s-tryon-rendering-with-lawn cover
Charlotte has a ton of modern architecture and 1970s-era architecture — but not too much 90s style.
That’s exactly what Charlotte will be getting in the new tower planned for the former Charlotte Observer site at 620 South Tryon Street.
Updated designs that were just revealed show a much-improved vision for the project than what was out there before. I like the pyramid and what it will add to the skyline. It will also help balance the skyline between Hearst and Duke.
/2024/01/05/1704478806415.jpg)
/2024/01/05/1704478807100.jpg)
/2024/01/05/1704478807648.jpg)
/2024/01/05/1704478808156.jpg)
Here’s a breakdown of what to expect with this project:
Office:
- 1 million square feet of office space
- 33 floors
- 632 feet tall (Hearst Tower is 659 feet, for comparison)
/2024/01/05/1704478808808.jpg)
Retail:
- 2 spaces on Church
- 1 space on the Pedestrian Promenade (see below)
- 2 spaces accessible from the office tower
- Space 1: 6,800 square feet (ground floor of parking deck on Church)
- Space 2: 7,400 square feet (ground floor of parking deck on the Promenade)
- Space 3: about 5,000 square feet (ground floor of office tower on Church)
- Space 4 and 5 are spaces inside the office tower accessible from the lobby. One is small and likely to be a coffee shop or something along those lines, the other is gigantic.
- About 25,000-30,000 square feet of retail with this phase of development
/2024/01/05/1704478809285.jpg)
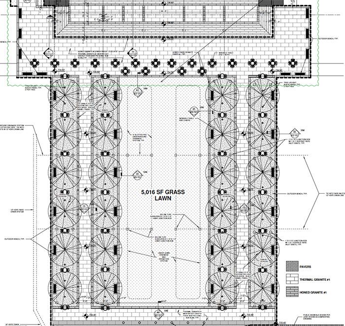
Tryon Plaza:
- 25,000 square feet of urban space
- Tons of seating
- Grassy field
- Pavers and granite stone hardscape bring people from Tryon to the office lobby
- Flanked by two future development sites that will hopefully provide retail to service the open space
- New trees to provide shade for part of the seating area
Pedestrian Promenade:
- 2 seasonal planting beds that will likely evolve with the seasons
- Retail lined from the parking deck
- Tons of seating
- Brick pavers
There is some major forward thinking on this Pedestrian Promenade. They have space allotted for food trucks to come and park along it across from the retail in the parking deck.
/2024/01/05/1704478810068.jpg)
Parking:
- Office Tower Parking Deck: 875 parking spaces
- Church St Parking Deck: 1756 parking spaces
- 190 bike parking spaces
This is just a high-level overview. There is so much more to this phase (and the entire project) than what is outlined.
There are rumors of a 1,000 room hotel, hundreds of thousands of square feet of retail and much more. Personally, I think a residential tower will be announced next but we will see.
The design is much better in that it is taller so it is not as boxy, glassier so it’s not so plain and further improvements have been made to the ground floor.
There are still a lot of blank walls, but the site plan is important to remember that a lot of them will be covered up by future developments.
There will also be numerous traffic and pedestrian improvements.
Putting a light at the dreaded Church and Hill corner will help tremendously.
I do have an issue with the staircases planned on both Tryon Plaza and the Pedestrian Promenade.
I understand the grading on this site is insane but there has to be a more creative way to connect the pedestrian to the project than giant staircases. I feel like anyone walking to this project will feel like Rocky running up the steps at the Philadelphia Museum of Art.
/2024/01/05/1704478810747.jpg)
Lincoln Harris has continued to be tight-lipped on the project but hopefully, we will see an announcement soon. Tenants are lined up and the site already has a tower crane in the air, it’s moving.
HKS and LS3P are the architects on the project.
