Get ready, east Charlotte: Common Market is opening a new location in the Oakhurst neighborhood.
The new location of the classic Charlotte deli, bar and bottle shop will be right where Commonwealth Drive hits Monroe Road, and convenient to Cotswold. They’re calling it their “OakWold” store.
Construction is underway now. Expect a spring 2017 opening.
The owners are hosting a neighborhood meeting at 5 p.m. February 6 at Clayworks to get neighbors’ ideas.
Photo via Common Market
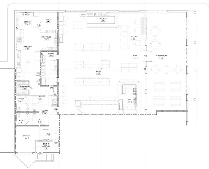
The size, design and layout will be similar to the other Common Market locations.
This would be the third location, after the original in Plaza Midwood and the South End location, which closed due to construction and will soon re-open in a new location a half-mile away.
The OakWold location will have 6,500 square feet plus 1,300 square feet of patio space.
Main differences: A U-shaped bar and a larger kitchen to focus on prepared food and take-home options.
Renderings by Hood Architecture via Common Market
If you need a reminder, here’s the flagship Plaza Midwood location.
And this is what Common Market is cooking up for its soon-to-reopen South End location.
This should be open in late spring on West Tremont Avenue.