Chupitos is out and a TIN Kitchen co-founder is in on Graham Street
Add Axios as your preferred source to
see more of our stories on Google.

chupitos-future-location-charlotte
400 South Graham is the little building at the corner of MLK & Graham, next to the Circa apartments. It was once slated to be Chupitos, a shot bar concept that was announced something like two years ago. Construction started and then unexpectedly stopped. Chupitos had trouble with the money behind the project and unfortunately it fell through.
/2024/01/06/1704561759004.jpg)
What was left was a building that looks worse now than when the project started. Half under construction, it certainly doesn’t have the “cosmetic appeal.”
/2024/01/06/1704561759340.jpg)
That’s about to change as Nick Lischerong (co-founder of the TIN Kitchen) and his group, Lischerong Enterprises and Holdings, is under contract to take over the site.
/2024/01/06/1704561759614.jpg)
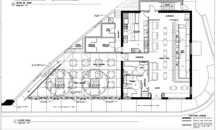
Their plan is to build out the 2,200-square-foot space and have it ready for tenants to move in. The interior and exterior will be completed to allow for an easy transition from shell space to tenant move in. Nick told me they “are able to offer full-service development and construction, allowing us to facilitate as much or as little as the client prefers” which I think will really help prospective tenants buy into the site.
What’s interesting about this site is the potential it has without having any parking. Its location can be prime for foot traffic. A brand new apartment complex is right next door, not to mention being an easy walk from Element, Catalyst, the Mint and soon to be Ascent and Museum tower. Yes, Graham is a pain to cross (people treat it like a highway) but there is a stop light leading right to the site.
/2024/01/06/1704561760839.jpg)
/2024/01/06/1704561761058.jpg)
/2024/01/06/1704561761231.jpg)
Nick has big plans for the site and has said that the patio is the most crucial component. The patio will amount to about 1,000 square feet and will tie the entire project together. There is also a possibility (not set in stone by any means) for a rooftop deck to be built. This would offer amazing skyline views which would never be blocked due to the ballpark and park.
Personally, I would love nothing more than for a local brewery to have a satellite location in this space to open its presence Uptown. An Uptown brewery would be too expensive to operate but a taproom to showcase a brand and beers would be absolutely incredible for this location.
If there is anyone with a creative mind and wants to open something awesome shoot an email to [email protected].
