Mar 31, 2016 - News
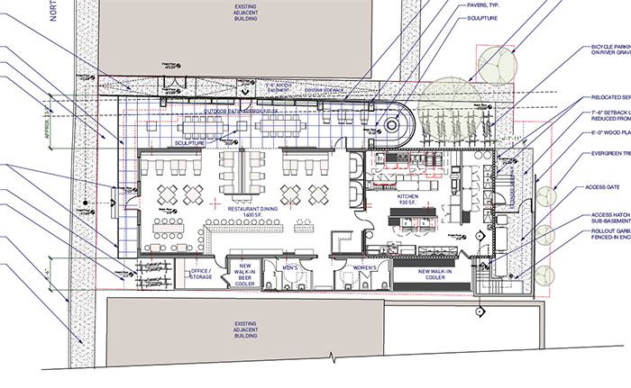
FIRST LOOK: Haberdish will turn a red warehouse into NoDa’s newest restaurant
Add Axios as your preferred source to
see more of our stories on Google.

Photo courtesy of Cluck Design Collaborative
Add Axios as your preferred source to
see more of our stories on Google.

Photo courtesy of Cluck Design Collaborative