INSIDER: The Bank of America Plaza building renovations are coming
Add Axios as your preferred source to
see more of our stories on Google.

The Bank of America Plaza building is a perfect Charlotte example of a nice looking building that’s terrible at being inviting on the street level despite being at arguably the most important intersection in the city — Trade and Tryon.
The building itself — tall, imposing and sheathed in beautiful black glass — stands out in the skyline. But on the human scale it couldn’t be more lacking.
The Tryon side does nothing but block off the public with its glass. The “alley” side (between the building and Chima) is nothing but a smokers’ den and, again, is blocked off by the glass.
The redeeming side, the fountain plaza, is a mixed bag. On one hand there is abundant seating, a fountain (that hasn’t run in a long time for some reason) and a new restaurant being built at the bottom of the Omni. On the other, it’s a large open lobby with no activation space and more being blocked off by glass.
Relief is coming, as TIER REIT is set to change all that is wrong and update the entire base of the building to recognize a need for ground floor retail and human interaction.
I will have full renderings and scope information early next year, but for now let’s take a simple look at the project and its benefits from the surface level.
/2024/01/06/1704517571520.jpg)
/2024/01/06/1704517571760.jpg)
/2024/01/06/1704517572067.jpg)
/2024/01/06/1704517572389.jpg)
/2024/01/06/1704517572700.jpg)
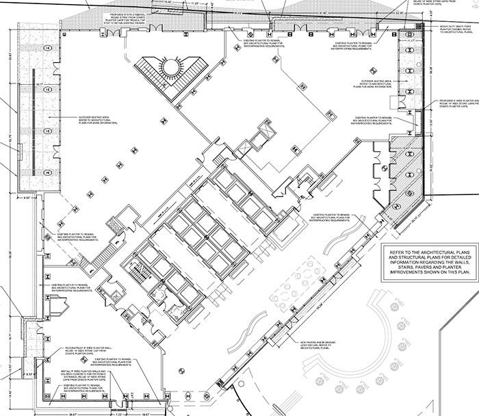
At first glance the site plan is rather confusing, so I’m not able to say how many retail spaces we are gaining. It looks like a minimum of three, but they may be marketing them as shells to split up per tenant need.
The benefits of having street level retail at the most important intersection of Uptown are immeasurable, and it appears as though the developers have heard the cries and are meeting a huge need.
Perhaps more importantly than retail space is the human scale interaction between the building and the public. The plans call for patio space on the alley side and the fountain plaza side. This will allow the tenants to have patio seating and truly have the space interact with the public walking by. I assume there will be seating along Tryon as well.
As for the façade, it is getting a major facelift. Stone veneers will complement aluminum- and bronze-accented metal panels. It’s hard to visualize, but it seems like the base will take on a whole new life. The building will appear as if built around the base, rather than the other way around.
Overall, this project will do wonders to open up this building to the public and create some actual street life at this crucial spot of Uptown. More on this project next month as we get some actual visuals. Stay tuned.
Building permits were issued December 16 and this project will likely be complete in 2017.
