New plans filed with the city give us the most detailed look to date on what’s coming to Stonewall Street.
Civil land use plans have been approved for the big Stonewall Station project, and grading permits have been granted. Construction is looking to begin by the end of the year.
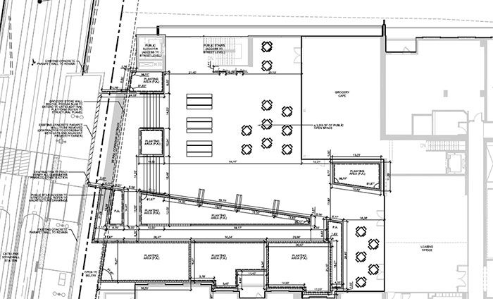
Here are the highlights from the approved plans:
456 apartment units
19 stories plus basement
230’ high-rise residential
High-rise will have a rooftop deck – “sky lounge”
9,000 square feet of transit plaza
1,378 space parking deck
54,410 square foot Whole Foods
7,420 square feet additional retail
Carolina Panthers mural skins proposed to screen the parking deck (final design up to selected artist)