The B Tower: Changing everything you know about 5th Street
Add Axios as your preferred source to
see more of our stories on Google.

b-tower-charlotte
Tons of development is coming to 5th Street – from a boutique hotel to a seafood restaurant.
With all these upcoming developments, none are more exciting than the B Tower. A five floor retail building that will change the face of the street and bring new character that the area hasn’t seen before.
/2024/01/06/1704520927413.jpg)
What is it?
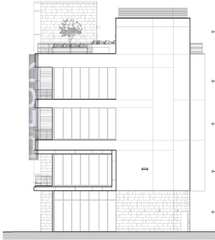
Binaco International is set to bring a 4-story, 74 ft retail building to the current plot occupied by Connolly’s patio. There will also be a 5th floor rooftop terrace.
With a focus on retail, the project fills a huge void in not only creating outdoor space, but also much needed space for restaurateurs and retail entrepreneurs alike.
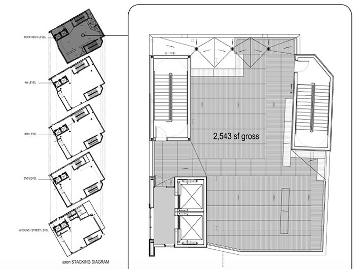
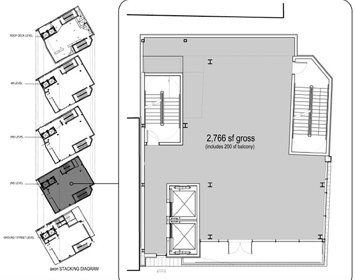
The breakdown of square feet per floor is as follows:
- 1st floor – 2103 sqft
- 2nd floor – 2766 sqft (includes 200 sqft balcony)
- 3rd floor – 2737 sqft (includes 160 sqft balcony)
- 4th floor – 2743 sqft (includes 160 sqft balcony)
- 5th floor rooftop – 2543 sqft
Not only are they adding approximately 15,000 sqft of usable retail space, they are also doing sidewalk improvements and adding a rooftop bar on top of Connolly’s.
The project calls for the sidewalk to be around 11 feet wide. This will allow Connolly’s, The Local and B Tower to use sidewalk space for additional seating (think 5 Church or Basil’s outdoor areas).
/2024/01/06/1704520927736.jpg)
/2024/01/06/1704520928097.jpg)
/2024/01/06/1704520928422.jpg)
/2024/01/06/1704520928754.jpg)
/2024/01/06/1704520929283.jpg)
/2024/01/06/1704520929567.jpg)
/2024/01/06/1704520929910.jpg)
Connolly’s is losing their patio, however this project is building a 3rd floor rooftop bar on top of the existing Connolly’s roof. This will be accessible via the 3rd floor from the elevators in B Tower.
Why do you care?
/2024/01/06/1704520930271.jpg)
/2024/01/06/1704520930804.jpg)
/2024/01/06/1704520931169.jpg)
/2024/01/06/1704520931492.jpg)
/2024/01/06/1704520931960.jpg)
/2024/01/06/1704520932288.jpg)
/2024/01/06/1704520932665.jpg)
Let me start by addressing the elephant in the room. The biggest “take away” people seem to have from this project is “WHAT?!?! THEY’RE GETTING RID OF THE CONNOLLY’S PATIO, NO!!!” It’s an absolute knee jerk response and one that, if they continue listening, wouldn’t even be a response. To that response, I say: “You are losing nothing and gaining a ton.”
Not only is Connolly’s getting their own patio on top of their building (rooftop patio > ground floor patio), they are also adding a 5th floor rooftop patio for use as well.
We are losing a ground floor patio and gaining 2 rooftop patios PLUS a cool looking building and 4 new retail tenants. That’s beyond a win if you ask me.
So now that that’s addressed, let’s move on to why else you care about this project…
Sidewalk widening: Those who have been outside Connolly’s or The Local, Sip late at night or during lunch hours know it’s basically a death trap. The sidewalk is narrow and there are so many cars zooming by, it’s not exactly pedestrian friendly.
This project will widen the sidewalk to not only allow additional walking space, but to add extra seating/drinking space outside the establishments on the street there.
The addition of four retail tenants (one for each floor with the rooftop likely to be used by the 4th floor tenant) is huge for the area and will continue to add to the “restaurant/bar row” vibe that 5th Street is developing between Church and College. The hope it to keep the tenants local, however there’s interest from some trendy national chains that would fit in quite nicely.
When can you use it?
Binaco has a 14 month timeline once ground breaks and are hoping for a late 2016 completion for the entire project.
Also, the rooftop patio for Connolly’s will be complete ASAP with the elevators for B Tower being built first to accommodate, followed by the rest of the tower.
This is a truly transformative project for the area and Charlotte in general. The city isn’t the best when it comes to true infill projects as well as multi-level, multi-tenant projects. B Tower looks to change that with its slick design and focus on providing to residents of the city.
Photos via Peadon Finein Architecture.
