EXCLUSIVE: First new hotel to hit the block Uptown; Embassy Suites is ready to make its mark.
Add Axios as your preferred source to
see more of our stories on Google.

Embassy-Suites-Uptown-Charlotte
What is it?
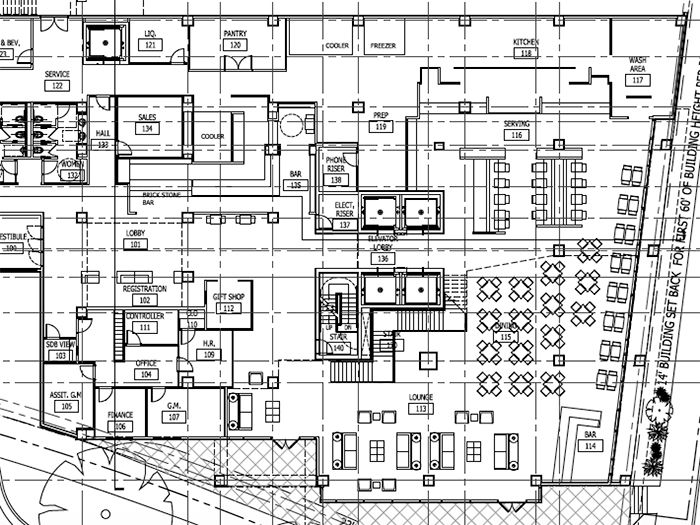
Located along MLK Blvd between Brevard and Caldwell, Embassy Suites Uptown is a 10-story, 250-room hotel. Being developed by BPR Properties the hotel is the first new hotel to be built Uptown in quite some time.
/2024/01/06/1704521164483.jpg)
There will also be a large (about 5,000 sqft) retail shell space located along the Brevard Street side of the hotel. BPR Properties teamed up with CBRE last month and hopes to have a tenant lined up by October or November.
/2024/01/06/1704521164820.jpg)
/2024/01/06/1704521165089.jpg)
With Overcash Demmitt Architects designing this project, it is a true infill project that only adds to our great density in the area.
Why do you care?
I have to admit, at first I wasn’t enthused by this project – just another hotel Uptown. But I have to concede that after seeing the interior renderings, this project is just what this area needs. A jumpstart.
There will be a massive bar and lounge space on the ground floor (Caldwell & MLK) that Birju Patel, President of BPR, hopes will be a place hotel guests and locals can mingle and be open to everyone. “We wanted the bar to be something really special so we decided to make it the focal point of our 1st floor public space,” Patel stated.
He continued by saying, “We want locals to come in and grab a drink before going out for the night. Or perhaps meet friends at the bar before walking over to a nearby restaurant.”
Let’s not forget Amelie’s is opening a massive 11,000 sqft location just a few blocks away, oh and there’s that thing called Whole Foods coming soon to the area.
/2024/01/06/1704521165504.jpg)
/2024/01/06/1704521165843.jpg)
/2024/01/06/1704521166376.jpg)
/2024/01/06/1704521166696.jpg)
/2024/01/06/1704521167046.jpg)
/2024/01/06/1704521167522.jpg)
/2024/01/06/1704521167967.jpg)
/2024/01/06/1704521168334.jpg)
The interior really does look beautiful and it seems like they are aiming to give Charlotte much more than a hotel bar, but rather a place to truly be comfortable and grab a drink. Rejoice!
Apart from the hotel lounge there is a pretty large retail space (that I image will be a restaurant) that pedestrians also have to look forward too.
There will also be a ground floor terrace outside the hotel and the project looks to really activate pedestrian activity in the area.
When can you use it?
The building is already topped off and Patel hopes to have it opened by Spring of 2016. He added “a lot of hard work has been put in by a lot of people to get the project to where it is today. We could not have done this without the overwhelming support from the City of Charlotte and it’s officials.”
Photos via Overcash Demmitt Architects and BPR Properties.
