Packard Place restaurant site plans. No beer garden, but will have outdoor lounge
Add Axios as your preferred source to
see more of our stories on Google.

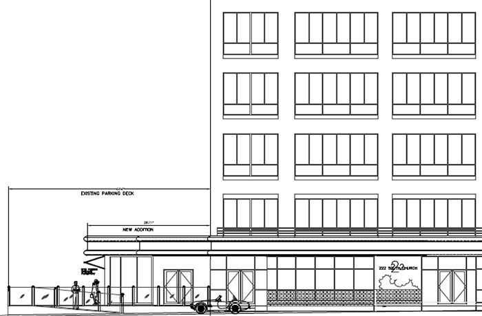
site plans for packard place restaurant
**Update (10/15/15):
A few weeks ago I reported that the Bottle Cap Group is working on a “beer garden” concept at Packard Place and now that I have the site plans, I can report a little more.
Quick look at what we learned from these new plans:
- New structure to be built on half of existing parking lot
- Structure will have garage doors to allow indoor/outdoor feel depending on weather
- Lounge area outside on remainder of existing parking lot
- Separate bar for outdoor lounge area
- Stained concrete and grass flooring outside
- Full service restaurant with centralized bar inside
- Mosaic tile entry way
- Plenty of bathrooms, no lines!
While it may not be the beer garden we were all hoping for this will still be an amazing addition to 3rd Ward. 3rd Ward lacks full service restaurants and this project will not only be a new addition on that front, it seems like it will be a stellar place to enjoy a drink in and outside.
Let me explain a little of what you are seeing in the site plan. I have to revise my statement that this will be a full-blown beer garden because it appears that it won’t be. However it does appear that it will be something just as awesome.
A new area (which you can see in the Church Profile picture and it’s labeled New Addition) is going to be built over half of the existing parking lot as shown by the “NEW DINING AREA OVER PARKING DECK” in the site plan. This will extend from the entry point to where you can see the over hang. The rest of the parking lot WILL be an outdoor lounge area with tables and chairs as well as grassy area in the back (to be used by Packard Place tenants) to give it a “garden” feel. There will be about 2000 square feet of outdoor space for the restaurant so there is still plenty of outdoor lounge space.
/2024/01/06/1704522195437.jpg)
/2024/01/06/1704522195906.jpg)
/2024/01/06/1704522196224.jpg)
/2024/01/06/1704522196540.jpg)
/2024/01/06/1704522196946.jpg)
/2024/01/06/1704522197766.jpg)
The transition from indoor to outdoor will be seamless. If you notice in the back side of the site plan in the lounge area, there will be a bar to service the outdoor lounge area. Above that bar on the outside there will be TVs to enjoy while waiting for a drink. In the new dining area there will be 11’ wide glass “garage doors” that will allow them to be opened or closed based on the weather.
The inside definitely seems like it will have more of a contemporary restaurant feel with a mosaic tile entry way and a centralized bar. This is a clear upgrade over Picasso’s and I will continue to report on it as more information comes out.
Analysis is based off of interpretation of the site plan. We will have to wait and see how it actually comes together when construction is complete. Plans developed by Andrea Harper (engineer).
