May 27, 2015 - News
City Smart: Eastland Mall plans and women-owned businesses on the rise
Add Axios as your preferred source to
see more of our stories on Google.

charlotte nc
3 Important Things
- Chief Monroe retires. CMPD Chief Rodney Monroe announced his retirement last Monday. Monroe’s approach to neighborhood policing and the decline in the crime rate since his arrival eight years ago have made him a well liked Chief. Monroe’s departure, however, is the latest in what some city council members view as an exodus of high-ranking city officials since Ron Carlee took on the City Manager role. They held a 30 minute closed session meeting last Monday, and asked Carlee not to be present. Reports say they considered taking a vote of no confidence, but decided against it.
- Cambridge: It’s not just for charters. CMS will begin offering Cambridge International at six schools this fall (elementary-high). Cambridge International (CI) courses rival Advance Placement (AP) and International Baccalaureate (IB). Elementary CI covers English, Science and Math while emphasizing leadership and service. High school students can earn the prestigious Advanced International Certificate of Education and college credit. Adoption of the CI curriculum is one way CMS is demonstrating public schools can offer quality, innovative, programs (note that neighboring Cabarrus Charter Academy also offers the CI program). Meanwhile, in Raleigh, the NC House just approved a $1MM grant to a charter advocacy group as part of the budget, over the protest of some who wanted to spend that money to fund more teacher assistants in public schools.
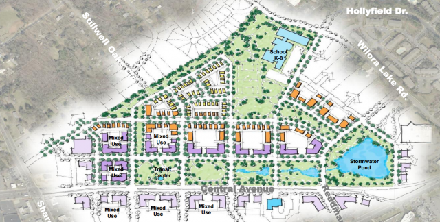
- Eastland. City planners unveiled plans for development of the old Eastland Mall property last Thursday. The city bought the property in 2013. Eastland Mall was one of the greatest malls in the Southeast and a neighborhood center. The site has been vacant since the mall closed in 2010. The project aims to recreate a neighborhood hub, enhance area connectivity and walkability, create a sense of “place” and a place for civic development. The new plans include residential and commercial mixed use, a K-8 magnet school, recreation center, Gold Line stops and transit center, and a park that features a storm water run off pond. We would like to know where the ice skating rink will be located (because honestly, that’s what made Eastland the coolest mall ever.)
/2024/01/19/1705696515173.png)
2 Happy Things
- Brevard Street reopened last Friday! It’s been blocked off while Levine Properties worked on developing First Ward park. Now you have a way to walk or drive by and check on the progress of the park, which is slated to open later this year.
- NC ranks third among US States in the growth of women-owned businesses. We’ve seen a 95% increase in the past 18 years in women-owned business, outpacing the national average of 74%. View this as the silver lining to our ranking of 45th in the growth of revenue by women owned firms. So your homework for the week is to shop at a lady owned business so we can work on moving to #3 in revenue growth as well.
1 Random Thing
- According to US Census Bureau estimates, Charlotte’s population is now 809,958 and the city grew by 2% between 2013 and 2014. More importantly, we are still beating Raleigh in both total population and population growth (just kidding…kind of).
