Under construction: Breakdown of 300 S. Tryon Tower
Add Axios as your preferred source to
see more of our stories on Google.

300-s-tryon-tower-charlotte
“We are starting to look like Dubai.”
A simple comment my friend made the other day that begs the question, why? We don’t have dust storms, we don’t have towers rising 2700 feet…we don’t even have a body of water around our city. So why would we be like Dubai? The answer is very simple, cranes. Cranes are once again beginning to sprout up all over town that’s making those who lived here in 2007 reminisce, and perhaps worry.
A lot was promised to Charlotte before the Great Recession (are we still calling it that?) and a lot of projects never came to fruition. Look no further than the scar upon the Epicentre, you know what I am talking about. That ugly steel and concrete left over was once supposed to be a glorious monster of a condo building before the market crashed. Luckily for us that scar is getting some much need plastic surgery soon.
Sure we have seen countless articles on development lately, but it’s all so hard to keep track of everything going on. My girlfriend constantly tells me “I can’t keep them all straight” and I am willing to bet she is not alone.
Have no fear, over time we will explore some of my favorite projects under construction, nearing groundbreaking and some we still may need to wait for. My name is Jason, and welcome to the Charlotte development tour.
/2024/01/06/1704522889392.jpg)
/2024/01/06/1704522889720.jpg)
/2024/01/06/1704522889974.jpg)
/2024/01/06/1704522890351.jpg)
/2024/01/06/1704522890680.jpg)
/2024/01/06/1704522891043.jpg)
What is it?
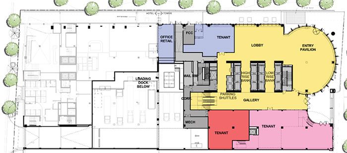
If you have walked down Tryon lately you may have noticed a gigantic hole in the ground. Well that folks, is the beautiful 300 S. Tryon tower.
/2024/01/06/1704522891373.jpg)
Why do I care?
300 S. Tryon is a 463 ft monster with not only 25 stories of office space, but a gorgeous 11-story, 208 room hotel that will front Romare Bearden Park.
The hotel is likely to be a Kimpton property and will have a tavern attached on 3rd Street as well as a rooftop bar overlooking the park. Kimpton is a fantastic brand that many folks will love with its innovative design and the bar is sure to add to the greatness that is 3rd Ward.
/2024/01/06/1704522891706.jpg)
The main tower will have a public art gallery in the large lobby for the public to enjoy, state of the art office space, and ground floor retail, including a massive 2-story restaurant overlooking Tryon. This project will not only add density to the skyline, but will also add more street presence to 3rd Ward as well as Tryon.
One way it will really activate 3rd street is there is a planned 30′ wide linear park leading up to Romare Bearden Park from Tryon to Church along 3rd. To help picture this, imagine trees and other greenery along 3rd street and along the building itself. In the middle of that will be a curving sidewalk running the length of the street. It will have plenty of public seating, trees and planters. This will really help the building flow into the park and keep our streets green.
When can I use it?
Construction is full steam ahead and looking to begin pouring the underground deck soon. Completion is set for Spring 2017.
—–
Each week I will profile projects throughout town. Many local media outlets have reported on a lot of these projects, but I don’t aim to just regurgitate information you already know. I hope to provide new insight and directly relay just how it will affect you. I will mainly focus on Uptown but there are certainly some exciting things that require mentions outside of Uptown as well. Hope to see you again next week when we take a look at Tryon Place.
via Risden McElroy
