May 15, 2015 - News
Advent Coworking opening in Plaza Midwood later this year
Add Axios as your preferred source to
see more of our stories on Google.

avent-coworking
News Briefing
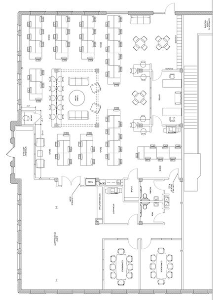
Advent Coworking will open in Plaza Midwood late summer/early fall 2015 and will be a creative coworking community, art gallery and event space all in one. They will occupy the former Kellogg’s building at 933 Louise Ave.
/2024/01/06/1704522954131.jpg)
/2024/01/06/1704522954374.jpg)
The Facts
- Advent’s mission is “to build a community of creativity to better [themselves] and the world.”
- The space will be 4,700 square feet and have 24/7 access with amenities that include 2 conference rooms, a 75 person event space, a podcast studio, outdoor patio with wifi, kitchen, personal lockers, dedicated work zones, creative community events and “bomb-proof” internet with IT support from LMK Consulting.
- Coworking Membership cost breakdown:
- $300 Founding Member – 3 months of flex desk cowering, participate in space design discussions and founding member meet-ups
- $249/month for a dedicated desk
- $149/month for a flex desk
- Costs for using their other space:
- $100/year – Avent Membership which includes conference room and event space twice a month (3 hours each session)
- $20/hour – Event space
- $20/hour – Podcast studio
- $5/hour – Conference rooms
Quote
/2024/01/06/1704522954695.jpg)
/2024/01/06/1704522955016.jpg)
/2024/01/06/1704522955293.jpg)
/2024/01/06/1704522955574.jpg)
/2024/01/06/1704522955890.jpg)
/2024/01/06/1704522956224.jpg)
“Not only will Advent be a nice, sexy place to get work done, we are providing a vessel for individuals to organically interact with folks who they might not have met otherwise. These interactions can spark ideas, create friendships, form businesses, and help the community.” -Kevin Giriunas, co-founder of Advent Coworking
Photo Tour
Preliminary schematics created by d3 studio
